
Residentials
Detached ADU at Tiburon
Client
Homeowner
Location
Tiburon
Year
2022
Role
Design
Type
ADU
Represented:
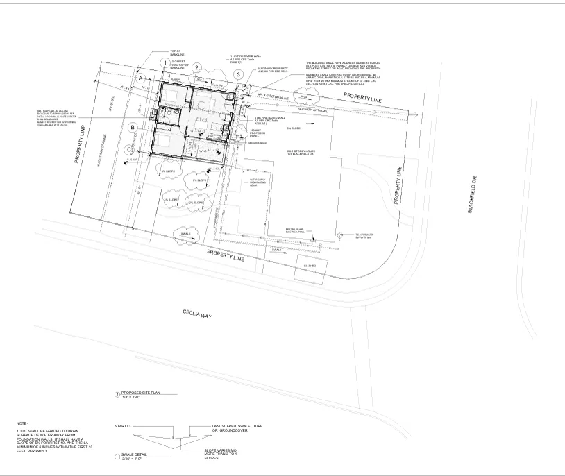
Concept & Objective
Provided full design service for ADU.


Inspiration
Our design approach focused on smart spatial planning and contextual integration. By maximizing natural light, optimizing circulation, and selecting high-quality yet practical materials, we delivered a home that feels spacious and warm despite its compact footprint. Architectural elements echo the main house’s language while introducing clean lines and contemporary detailing — a hallmark of Uni-CM’s commitment to refined, livable design.

Project Detail
The result is a turnkey ADU that delivers both everyday comfort and long-term value. From permitting through project delivery, Uni-CM managed every phase with clear communication, proactive coordination, and attention to detail. Homeowners now enjoy a beautifully crafted space that enhances their property’s functionality and market appeal — a testament to the thoughtful integration of design and build excellence.
Similar Projects
More Creative Projects to Explore
Discover our range of interior designs that turn ideas into stunning spaces!
Contact
Together, We Shape the Extraordinary
Interested in working with us? Let’s bring your space to life.






