
Residentials
Detached ADU - Arcadia Loma Verde
Client
Homeowner
Location
Arcadia
Year
2023
Role
Design
Type
ADU
Represented:
Designer
Concept & Objective
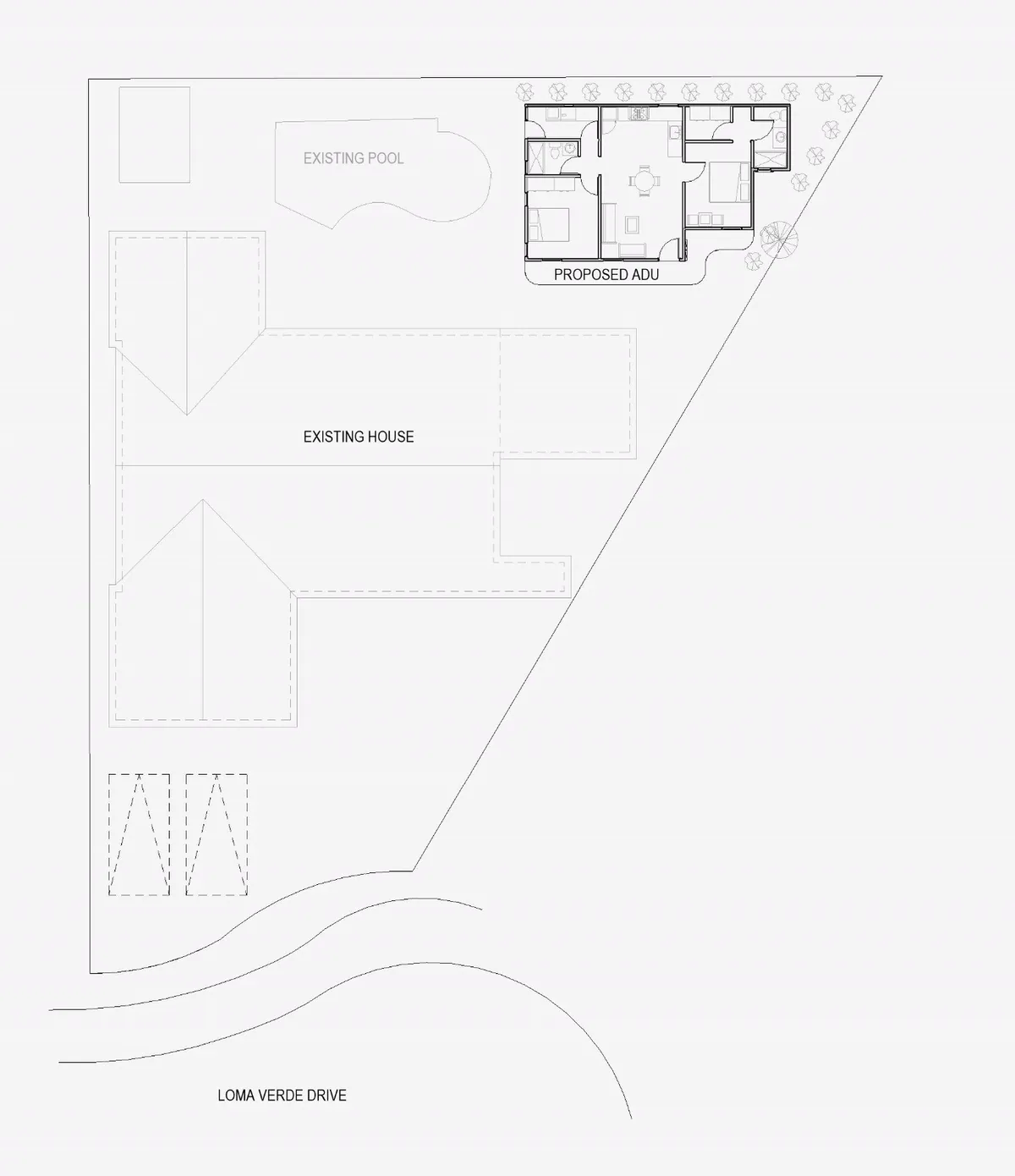
Provided complete design service for new detached ADU in the Arcadia. Lot was tight due to existing swimming pool. We provided precise coordination so that structural integrity was not altered for both pool and the new ADU.


Inspiration
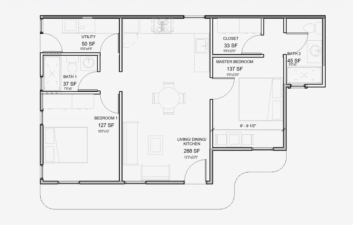
Our design approach focused on smart spatial planning and contextual integration. By maximizing natural light, optimizing circulation, and selecting high-quality yet practical materials, we delivered a home that feels spacious and warm despite its compact footprint. Architectural elements echo the main house’s language while introducing clean lines and contemporary detailing — a hallmark of Uni-CM’s commitment to refined, livable design.

Project Detail
The result is a turnkey ADU that delivers both everyday comfort and long-term value. From permitting through project delivery, Uni-CM managed every phase with clear communication, proactive coordination, and attention to detail. Homeowners now enjoy a beautifully crafted space that enhances their property’s functionality and market appeal — a testament to the thoughtful integration of design and build excellence.
Similar Projects
More Creative Projects to Explore
Discover our range of interior designs that turn ideas into stunning spaces!
Contact
Together, We Shape the Extraordinary
Interested in working with us? Let’s bring your space to life.





